アクアルーチェ北安江[MUJI INFILL 0 一棟リノベーション]

事例紹介

アクアルーチェ北安江[MUJI INFILL 0 一棟リノベーション]

2025.12.11

団地/マンション再生事業

  • 基本構想策定
  • サイン計画
  • 内装デザイン・基本設計
  • ワークショップ企画立案
  • PR支援(ウェブ・販促物制作)
  • 設計(建築)
  • PR支援(イベント企画運営)

事例紹介

アクアルーチェ北安江[MUJI INFILL 0 一棟リノベーション]

「MUJI INFILL 0 一棟リノベーション」全国初の取組

無印良品のリノベーションを展開するMUJI HOUSEでは、2025年11月より、法人所有のマンションや団地などの遊休資産をリノベーションにより再価値付けする新事業「MUJI INFILL 0 一棟リノベーション」を開始しました。
この事業は、既存建物の資産価値向上を目的に、全戸新築基準以上の断熱性能、一次エネルギー消費量等級のリノベーションを行い、外壁やサイン計画、また住棟内、外のソフト面の企画推進まで手掛ける法人向けソリューションです。
新事業の第一弾として、北陸電力株式会社が富山県および石川県に所有する社宅2棟を対象に、全戸を「MUJI INFILL 0 ZEH水準リノベーション」で改修し、賃貸住宅として再活用するプロジェクトを開始しました。

「MUJI INFILL 0 一棟リノベーション」の特長

本事業は、既存のRC造あるいはSRC造の新耐震基準のマンション・団地を対象とし、建物全体の資産価値を向上させることを目的としています。

  1. 新築以上の性能と資産価値の向上
    専用部(住戸)は、全戸「MUJI INFILL 0」ZEH水準仕様によるフルリノベーションを前提とし、既存住宅の見えない不具合まで適切に修繕します。高性能断熱材やインナーサッシを施工することで、断熱性能等級5以上、一次エネルギー消費量等級6を達成し、新築以上の温熱性能を実現します。これにより、温熱環境が整備され、真冬でも北側の部屋まで暖かく使える広々とした空間を提供します。
  2. 間取りの可変性と居住体験の柔軟性
    専用部(住戸)内は、住む人が引戸や無印良品の家具を用いて、暮らしや家族構成の変化に合わせて自由に空間を仕切ることが可能な、可変性の高いデザインを採用しています。
  3. 建物全体とソフトコンテンツの提案
    専用部に加え、共用部(共有スペース、外装、外構、サイン)のリノベーションも行い、建物全体の魅力を高めます。
  4. 補助金活用による経済性の確保
    性能向上リノベーションを実施することで、「長期優良住宅化リフォーム推進事業補助金」などの国の支援事業を活用する可能性を追求し、コスト削減をサポートします。

アクアルーチェ北安江(石川県金沢市)について

アクアルーチェ北安江は、北陸電力株式会社が社宅として、1996年に竣工した物件です。住戸数は12戸、鉄筋コンクリート造の3階建で、金沢駅から徒歩約17分、北陸鉄道浅野川線「上諸江駅」から徒歩約10分の場所に位置し、通勤・通学にも便利でありながら、閑静な住宅地として穏やかな雰囲気に包まれています。

リノベーション PLAN A「引戸とキッチンで変わる住まい」

2つのプランでリノベーションを実施しました。PLAN Aでは、LDK 空間の中央にある引戸を動かすことで、寝室空間を明るい南面に配置したり、北側の落ち着いた場所に配置したり住みながら自由に間取りを可変させることができます。また、キッチンに備え付けのカウンターテーブルを動かして、南北に光と風が通り抜けるロングカウンターキッチンのある暮らしとすることもできます。

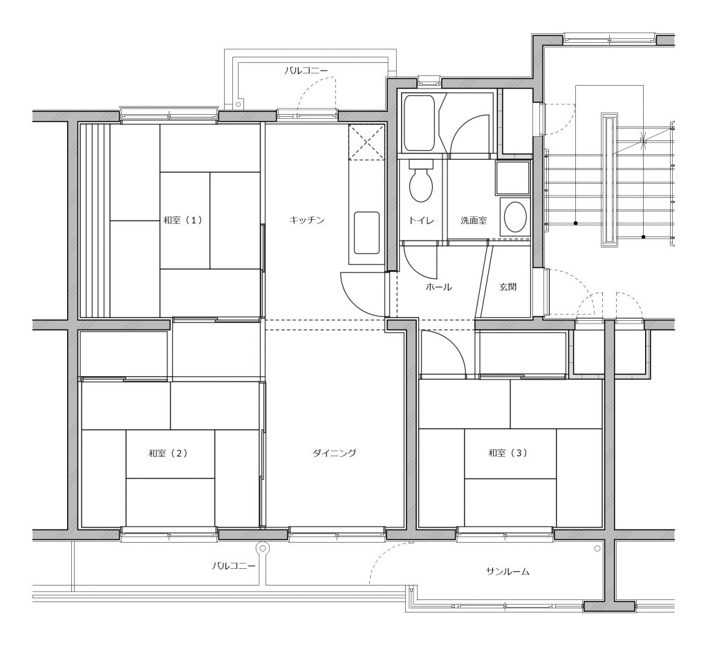
beforeリノベーション前

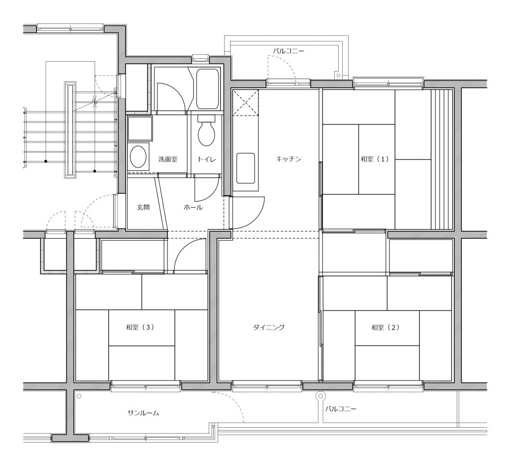
afterリノベーション後

リノベーション PLAN B「キッチンを中心にした暮らし」

PLAN Bでは、アイランドキッチンと可変性のあるテーブルを組み合わせたロングカウンターキッチンを中心とした暮らしができる間取りとしました。また、狭くなりがちな玄関も玄関ホールを同じ土間仕様としてシームレスにつながりを作り、土間空間に充実した玄関収納を配置しました。

beforeリノベーション前

afterリノベーション後