窓の家 No.49
外から帰ってきて、この『白いおうち』が目に入ると、ほっとした気持ちになります
窓の家 | 2025.12.2
神戸の市街地に建つKさんご家族の住まいは、1階が美容室になっている3階だての「窓の家」。美容師の奥さまが仕事をしながら、ふたりのお子さまのそばにいられるように、というご主人の思いから始まり、それに賛同した奥さまも一緒になって、土地探しから間取りに至るまで検討を重ねて完成させました。8年経った今も綺麗な白い外壁と清潔感のある室内がひときわ印象的な「窓の家」。ご夫妻に「建てるまで」と「暮らして感じること」を中心に伺いました。
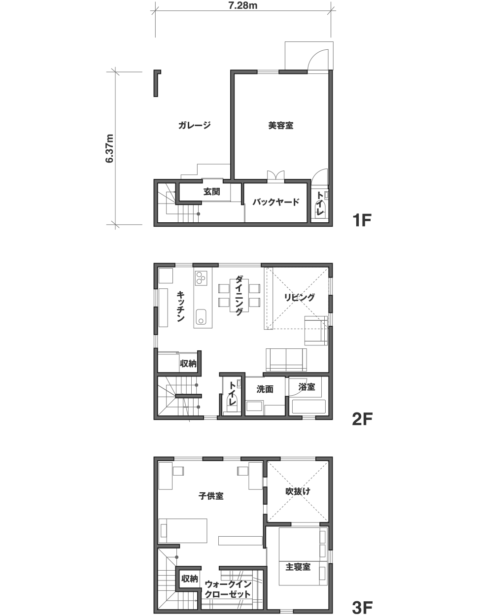
神戸市にある「窓の家」K邸は、閑静な住宅街に白い外壁が映えるお宅。1階は奥さまが経営する美容室で、2階と3階にご家族の居住空間があります。

■建物概要
ご住所:兵庫県神戸市
竣工年月:2018年2月
延床面積:131.66m²(39.83坪)
■ご家族構成
ご夫婦+お子さま2人

「自宅の1階に美容室を設けた住まいをつくりたい」
Kさんご一家は、ご夫妻とふたりの中学生の娘さんの4人家族。2頭の愛犬も大事なメンバーです。「窓の家」で暮らし始めて約8年が経ちましたが「とても過ごしやすい住まいです」とみなさん口を揃えてくださいます。
「以前は集合住宅に住んでいましたが、子どもたちが生まれた頃から、長く快適に暮らせる戸建てに引っ越したいという思いを共有していました」
そう話すお二人の「思い」が一気に実現へと動いたきっかけは、ご主人が『無印良品の家』を見学したことでした。ご主人に誘われた奥さまも、さっそく見学、魅了されました。
「開放感のある空間が素敵で、こんなところで住めたらと感じました。でも、夫の考えはさらに先を行っていたんです」
そう笑う奥さまに、ご主人が言葉を継ぎます。
「少し前から、自宅の1階に美容室を設けたいと考えていたんです。妻が思いのままに仕事ができるだろうし、子どもたちのそばにいる時間もより増えるだろう。いいことづくめなのではないか、とひとりでイメージを膨らませていたんです」
当時、美容室に勤務しながら充実した日々を送っていた奥さまは、「独立」は全く考えてはいなかったそう。ですが、ご主人の考えを聞いていくうちに、気持ちが傾きました。
「子どもたちが、小学生になるタイミングでした。私が自宅で働くことで、彼女たちとの距離も離れすぎず、細かな変化にも気づけるのかな、と思ったんです」
一方、ご主人は、すでに開放感と明るさをテーマにした間取りの大まかなイメージもできていました。
「当時の住まいには部屋がいくつかありましたが、家族全員がリビングに集まりがちだったんです。ならば発想を転換して、個室を増やすのではなく『リビングを広くする』ことを意識したらいいのでは、と思ったんです」
独創的なアイデアを聞いた奥さま。最初は驚きましたが、「もともと好みや考え方も似ているところが多いので、違和感なく受け入れられました」と語ります。
シンプルなデザインと、吹き抜けの開放感が決め手に
意見が一致したお二人は家づくり相談会に参加するなどして「無印良品の家」について、さらに調べていきました。
「威圧感のないシンプルなデザインと、吹き抜けの開放感が最終的な決め手にはなりました。ですが、耐震や断熱といった性能面の高さを知って『この家がいい』という思いが強くなりました。仕様やデザインが『無印良品』によってある程度セレクトされた中から、自分たちで選べるところも、無印良品の製品を愛用していた私たちにとっては良かったです。そして何より、担当の方々が私たちのペースに合わせて伴走してくれたので、土地探しも含めて自分たちの考えをしっかりと固めて進むことができました」
そう語るご夫妻、希望に叶った土地も時間をかけて見つけ、十分に納得した上で「窓の家」での住まいづくりを決めました。
「担当の方からの間取りのご提案に、ほぼ自分たちの考えが反映されていたので、とてもスムーズかつ楽しみながら進められた、という印象が残っています」
住まいづくりをそう振り返るご夫妻。
「各階の壁の色を一面だけ変える」「洗面所に三面鏡を設ける」といった希望を組み込みつつ、白を基調にした住まいを完成させました。

ベースのデザインがいいから、少しの工夫で快適に過ごせる
お二人に約8年暮らしてみての感想を改めてお伺いしてみました。
「吹き抜けがあるので、開放感だけなく、住まいの温度も一定に保たれやすいと感じています。エアコンも普段は1台稼働させるだけで十分。なので、光熱費もリーズナブルです」(奥さま)
「娘たちが個室が必要になることもあるだろうと想定して、3階は可変性の高いフリースペースを設けました。今のところ、ふたりのスペースをカーテンで仕切ったりはしていますが、間取りは変えていません。でも、いつでも変更できるという安心感があります」(ご主人)

冒頭でもご紹介したように、K邸は外壁の白さが印象的なお宅。さぞ掃除に手間をかけているだろうと思いきや「洗ったことはないんです」という答えがご夫妻から返ってきました。
「私たちも『窓の家』を選んだ時点で『この白い壁を綺麗に保たなければ』と気にかけていました。ですが実際に暮らしてみると、さほど汚れない上に、ついたとしても雨が降ると流れ落ちてくれるので洗う必要がありません。その代わり、駐車場のコンクリートを掃除するなどして、住まい全体の清潔感は出すようはしています」
印象的な外観から、ご近所の方々から声をかけられて会話が弾むこともよくあるとのこと。家にはお子さまたちのお友だちが遊びにくることも多く、美容室のお客さんたちからも「明るいけれど落ち着く空間」などと好評を博しているそうです。
「家具や小物類はあまり増やさず、すっきりとした空間を保つように心がけています。時折、家具のレイアウトを変更して、新鮮な気分になるようにしています」

奥さまの言葉に、ご主人もうなずきます。
「8年前とそれぞれのライフスタイルもずいぶん変わりました。でも、ベースの『窓の家』のデザインがいいので、ちょっとの工夫で快適に過ごせます。仕事から帰ってきて、この『白いおうち』が目に入ると、ほっとします。家族全員、いい家だと心から気に入っています」
そうまとめてくださいました。







