木の家 No.230
この家での暮らしが、心を穏やかにさせてくれるし、癒やしてもくれます
木の家 | 2026.4.7
海辺にほど近い閑静な住宅地に建つ「木の家」I邸。3階建ての住まいは、統一感と清潔感がありとても落ち着く雰囲気です。Iさんご家族がこの住まいに引っ越したのは、お子さまが就学する前。近くに小学校があり、ご夫妻の趣味の釣りを楽しめる海がそばにある環境で、「長く快適に暮らせる家を」という思いで作られた住まい。「無印良品の家」に決めた経緯や、約3年半暮らして感じる「住み心地」についてご夫妻にお伺いしました。

■建物概要
ご住所:兵庫県明石市
竣工年月:2022年11月
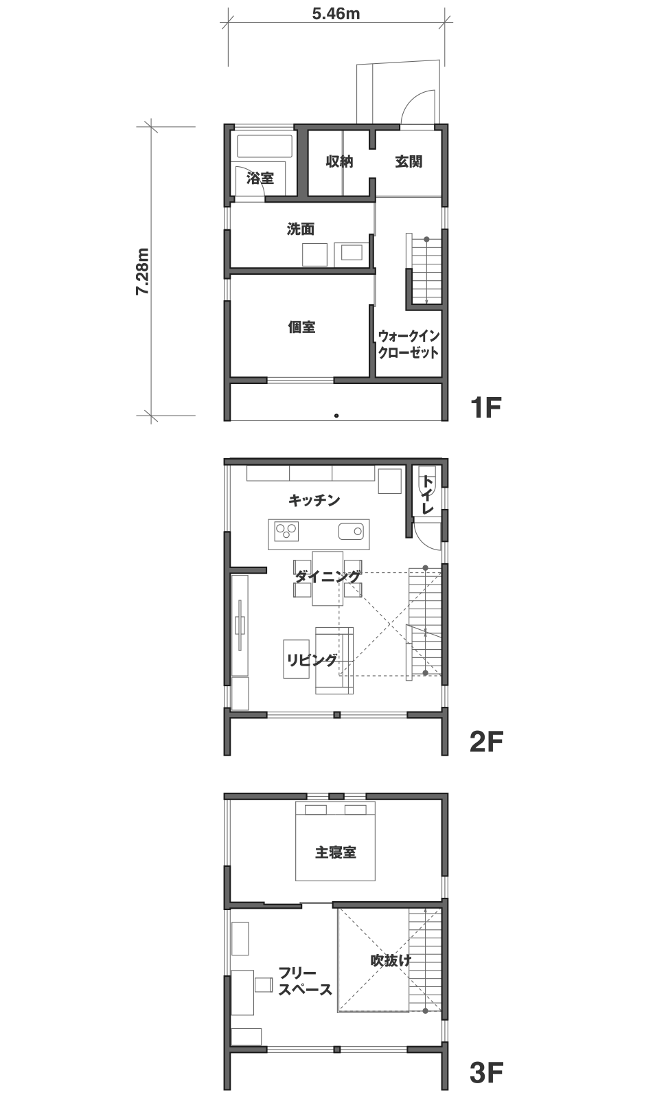
延床面積:99.37m²(30.06坪)
■ご家族構成
ご夫婦+お子さま1人
「こんな家に住めたら」という憧れから始まった住まい探し
「家族一人ひとりが自分らしくいられる場所だと思います」
ここは兵庫県明石市。Iさんご家族が、3階建ての「木の家」で暮らし始めて約3年半が経ちました。
Iさんご家族はご夫妻と小学生の息子さん。愛犬も大事な一員です。この住まいの前には、大阪市の都心部にあるマンションで暮らしていたご家族。ずっと住み続ける心づもりもありましたが、お子さまの成長に伴って手狭になってきたことなどをきっかけに、戸建てへの引っ越しを検討するようになりました。
「無印良品の家」は当初から候補としてあがっていました。
「当時の私の勤務先のそばに『無印良品 グランフロント大阪』ができて、ミニチュアサイズの『無印良品の家』を目にしたんです。引っ越しを考える前から『こんな家に住めたら最高!』って何度も見に行っていたんです」
そう振り返る奥さまは、ご主人を誘って「無印良品の家」に住まいづくりの相談に行きました。

「室内の木の質感が好きで『木の家』がいいなと感じました。もともと無印良品の製品が好きだったこともあり最初の訪問で、ここにしようとほぼ心が決まりました」
そう語る奥さまに、ご主人が言葉を継ぎます。
「私は無印良品が家を作っていることすら知りませんでしたが、実際にモデルハウスを見て、シンプルさがいいな、と思いました。ただ、比較検討をしてから決めたいと考えて、他の住宅会社も調べることにしました」
その後もモデルルームを訪問して、担当者との打ち合わせを重ねていくことで「無印良品の家」への理解を深めていったご夫妻は、比較検討もした上で十分に納得して「木の家」に住むことを選択しました。

「担当の方になんでも相談できたことが大きな決め手になりました。最初に家づくりの流れを教えてもらうことで、実際に暮らすイメージを描けたのも良かったです。また断熱をはじめとした性能面の高さや、間取りの可変性、メンテナンスの容易さなどを知ることで、子どもの成長をはじめとした家族の変化に合わせた暮らし方ができると思えました」
「3階建ても作れます」のひと言が後押しした住まいづくり
住まい探しはスムーズに決まったご夫妻ですが、土地探しには時間がかかりました。いくつかの候補を検討したのち、今の場所を選びました。お子さまが通う小学校がそばにある上に、海が近くて、ご夫妻の趣味である釣りに気軽に行けるという理想的な環境でしたが、2階建ての「木の家」ではご夫妻が希望するだけの広さが確保できませんでした。
「そうしたら担当の方が、3階建ても作れますよ、と提案してくれたんです」
その言葉に後押しされたご夫妻。改めて検討をした上で、その土地で3階建ての「木の家」を建てることを決めました。

「動線が確保された開放感がありながら、プライバシーも適度に守れる家」
住まいづくりはそんなコンセプトを基本に、ご家族の要望を組み込んでいく形で進みました。
「以前の住まいでは家事全般で動きにくくてもどかしい思いをすることが多かったので、動線には気を配りました。キッチンは家族と向き合いながら料理できるアイランド式を選びました。洗面所は玄関を入ってすぐに入れる場所に、広めに設けました。洗濯して乾燥させた服をかけておけるスペースを確保して、身支度もしやすくしたかったんです」(奥さま)

「3階の寝室には扉を設けて、周りから独立したプライベート空間になるようにしました。あと、玄関の横に収納スペースを設けました。ここに釣り道具を一式置いて、釣りにすぐ出かけられるようにしたかったんです。提案してもらった間取り図にこちらの要望がきちんと組み込まれていたので、スムーズに進められました」(ご主人)

2階のLDKで過ごす「家族の時間」に癒される
細部にまでご家族の希望を組み込んで完成した「木の家」。その住み心地には「子どもも含めて満足しています」とご夫妻はおっしゃってくださいます。
「家具類は、前から使っていたものに新たに無印良品の製品を加えたりしていますが、統一感のある雰囲気になって違和感がありません。『無印良品の家』のデザインの秀逸さを実感しています。住まいとしての性能も高いです。エアコンを1台稼働させるだけで、夏も冬も住まい全体が快適な温度に保たれます。共働きなので、犬だけが家にいる時間もあるのですが、そんな時でも安心感がありますね」
そう話すご夫妻やお子さまは、普段、LDKがある2階で過ごしていることが多いそう。
「ご飯を作ったり、食べたり、あとは宿題をしたり、動画を見たり。なんとなく皆がここに集まっています。冬にはこたつを出しましたが、最高に居心地良かったですよ」

ご親族やご友人たちからも「落ち着く」などと評判は上々。お子さまも住まい全体を使ってのびのびと過ごしています。今後は1階の洋室に奥さまの苔を使った作品を飾るギャラリーにすることなどを計画しているそうです。
「木の家」での暮らしを満喫されているIさんご家族。最後にご夫妻に「我が家のいいところ」について伺いました。
「穏やかな心持ちで過ごせるところです。仕事からの帰宅時に住まいが見えてくると、綺麗だなという思いと共に、帰ってきたなと感じて安心できるんですよ」(ご主人)
「心を癒やしてくれるところです。仕事などで疲れて帰ってきても家族たちに囲まれているうちに落ち着いた心持ちになる。この家での暮らしに、私自身が助けてもらっているな、と思います」(奥さま)



