人生2度目の家づくりも、「窓の家」で。|無印良品の家 売却サポート
住まいのかたち | 2026.1.30
東京都稲城市の閑静な住宅街に建つ「窓の家」。この家にアーティストのパートナーと猫ちゃんと暮らすSさんは、人生2度目の「窓の家」を建てようと計画中です。
Sさんは今から7年前、ピアノを家に置きたいという思いから、現在お住まいの「窓の家」を建てました。その後、ライフステージの変化からお引越しを検討され、今度は都心で、これまでの暮らしを少しサイズダウンさせた「窓の家」を計画しています。
新居完成に伴い、今回、新サービス「無印良品の家 売却サポート」を通して現在のお住まいの売却を予定しているSさんに、「窓の家の魅力」と、「これからの家づくり」を中心に、お話を伺いました。
こだわりすぎたくない自分に、ちょうどいい家
今から7年前。ピアノを家に置きたいと、住宅購入を決めたSさん。分譲マンションでは、防音室の設置が難しいことから、最初から戸建てで検討を始めたそうです。


「もともと、無印良品の商品が好きで、無印良品の家のことは知っていました。日々忙しいこともあり、家を建てるなら、こだわらなくてもかっこいい家にしたかったので、いい意味で仕様が決まっていて、ゼロから自分で考えるよりも美しく仕上がる、無印良品の家がぴったりだと思いました。無地のキャンパスのようで、アーティストのパートナーのセンスが活きるのも良かったですね」と、当時を振り返ります。
家の中にピアノやアトリエを設置したかったことから、間取りの自由度が高い「窓の家」に即決。見学会もご参加いただき、断熱性や防音性の高さを体感いただき、納得して購入に踏み切ったそうです。

「実際に住んでみて、無印良品の家の性能の高さと、これまでの住まいとの違いに驚きました。夏、暑くて眠れない経験をしたことがないですね。今は猫がいるのでエアコンを2台稼働させていますが、本当は1台で十分。次の住まいも、他の会社にお願いするのはリスクだと思うぐらい、性能に満足しています」。
トライ&エラーで家づくりを楽しむ
Sさんの家でひときわ目を引くのが、ご自身でペイントされたという緑・黄色・オレンジの3色で塗られた寝室のカラーウォールです。

「今の寝室は、元々はパートナーがアトリエとして使っていた場所なんです。猫を飼うようになって、絵にいたずらをするようになったので、寝室とアトリエを入れ替えました。この壁も、建築当初はパートナーが絵を描いていましたが、今の色に塗り変えました。汚れても塗れば綺麗になるので、メンテナンスも楽ですよね。これまでも、棚を取り付けては、なんか違うねと外してみたり、トライ&エラーを繰り返しています。でも何をしても様になるし、やりにくいなと思ったことはないですね」。暮らしていて飽きないと、Sさんは楽しそうです。
7年目の決断。2回目の家づくりはコンパクトで、猫ファースト
今のご自宅を存分に楽しんでくださっているSさんですが、今回、都内で2度目の「窓の家」を建てることになりました。

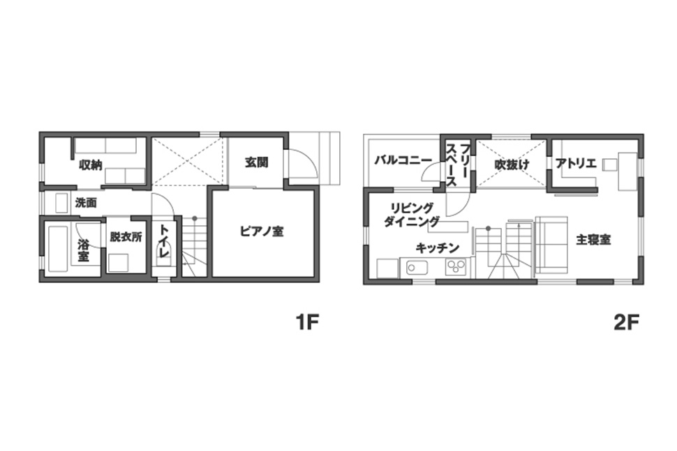
新しい窓の家の間取り
「コロナが終わって毎日出社で、1日3時間の往復がしんどくなったのが、今回の引越しのきっかけです。今の家は、新宿から程近くて、周りも自然が豊かで気に入っていましたが、次はもう少し賑わった場所に住みたいねと、23区内で土地を見つけました。無印良品の家は性能面で大満足だったので、他のメーカーで検討することは考えなかったですね。ピアノを1階に設置することを考えると、2階のリビングにしっかり南からの光を取り込める『窓の家』がぴったりなんですよ」。
「窓の家」の良さを熟知していただいているからこそ、あえて2度目も「窓の家」を選んでくださいました。性能面にご不便がないことから、次の家では、家のサイズ感や設備にこだわったそうです。
「この数年で、モノを持つことに対しての価値観が変わってきました。持てるだけ持つのではなくて、1つのいいものを長く使おうと変化しましたね。次の家には大きな収納庫を1つ作りますが、ここに収納できない分は買わないことにしようと思っているんです。家のサイズを小さくして、暮らしも変えてみようと思っています」。

これまでのダイニングテーブルの暮らしからキッチンカウンターでの食事へ、リビングと寝室を兼ねられるようにソファベッドを導入したりと、次の家の暮らしは、どこかアパートメントのワンルームのような雰囲気があります。
「もう一つこだわったのは、猫ファーストの家づくりですね。今の家は、猫の脱走が怖くてウッドデッキを使わなくなってしまったので、次は、ベランダに自由に出られるように前室を作ったり、吹き抜けを猫が上がれるようにしたり、植物もハンギングにしたりと、暮らしに繊細な猫のための工夫を凝らしています」と、Sさんは続けます。
家づくりは大変というイメージがありますが、決める事が明確に決まっていて、施主のニーズやライフスタイルを汲み取って提案が出てくる弊社の商談スタイルにも、ご満足いただいているご様子です。
「頻繁に打ち合わせをすることができないので、毎回楽しく提案してくださる担当者さんには感謝しています。悩みすぎて損をしたくないし、こだわりすぎてチグハグになるのも嫌なのですが、無印良品の家は、見た目や使い方がバラバラになることがなくてかっこいいし、早く決められるのが、本当に素晴らしいですよね」。

無印良品の家 売却サポート
Sさんは現在のご自宅を、新しく始まったサービス「無印良品の家 売却サポート」を通して、売却中です。最後にこの家がどんな方に向いているか伺うと、
「防音室があるので趣味がある方や、自然が豊かなエリアなので子育て中のファミリーに向いていると思います。防音室は、専門の業者さんに引き渡し後に作っていただきましたが、無印良品さんと連携して、工事の詳細を決めて、家全体の雰囲気に合うように床材を統一しています。夜でもピアノを練習することがありますが、音は気になりませんね。リモートで会議が多い人には、書斎として使うのもいいかもしれないですね」。

新居完成を待ち、現在お住まいの「窓の家」のお引き渡しは2026年8月頃を予定しています。
計画の真っ只中での取材となりましたが、「次の暮らしも、今からとても楽しみです」とSさんは嬉しそうに教えてくださいました。
詳しくは物件ページをご覧ください>



